1
/
of
2
Barks and Rec
-Premium Adjustable Jump for Dogs - Agility Fun Today!
-Premium Adjustable Jump for Dogs - Agility Fun Today!
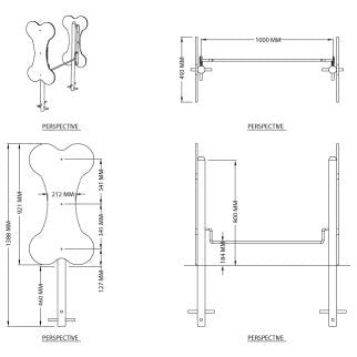
Adjustable Jump - Elevate your dog's agility training with our versatile jump featuring 4 height settings! Safe and easy to use.
Share
